ChappellSmith Limited

Interior Design Consultant and CAD detailing

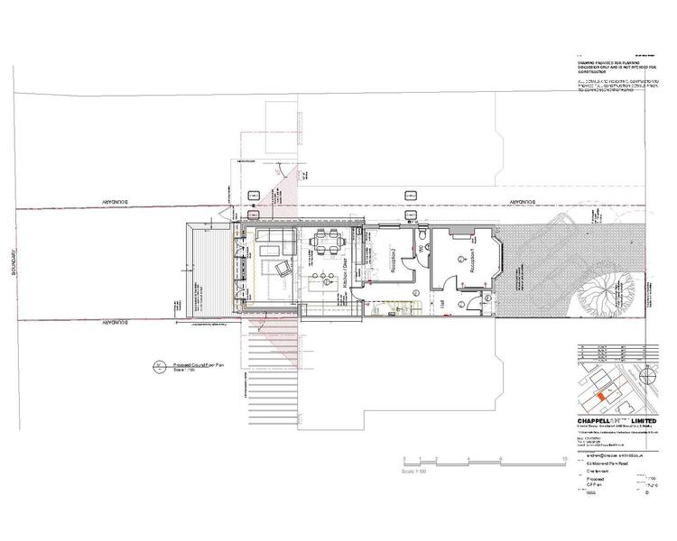
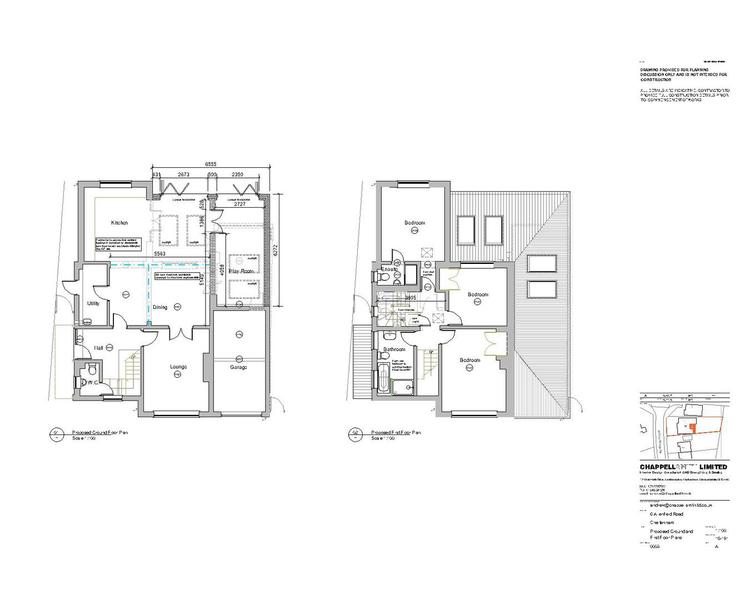
Planning Permission

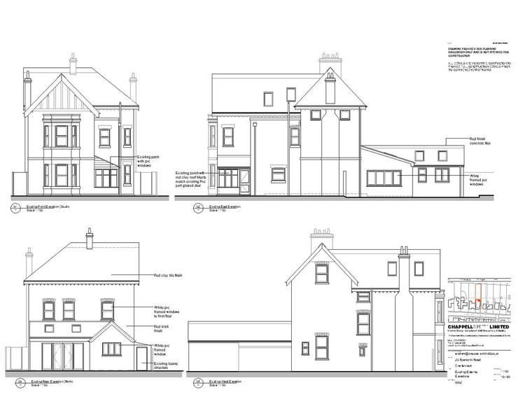
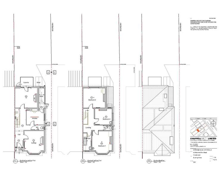
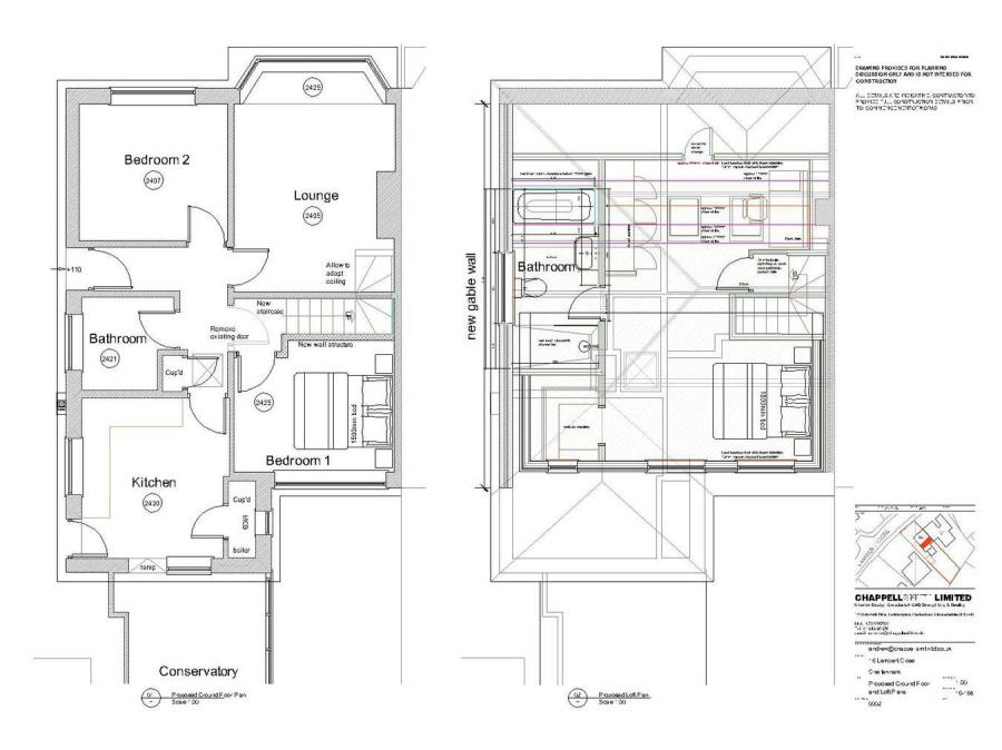
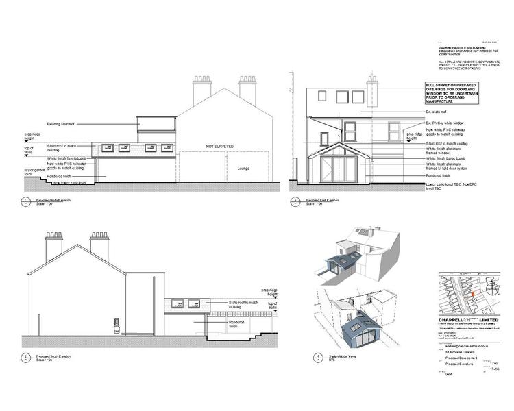
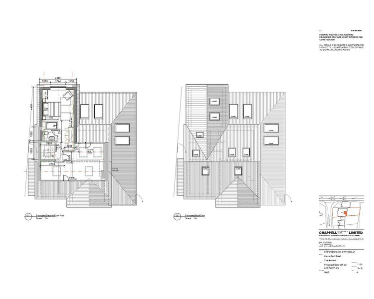
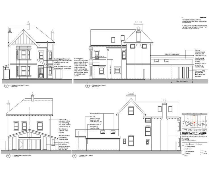
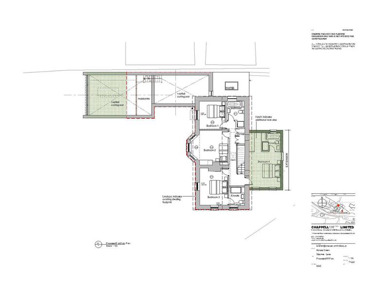
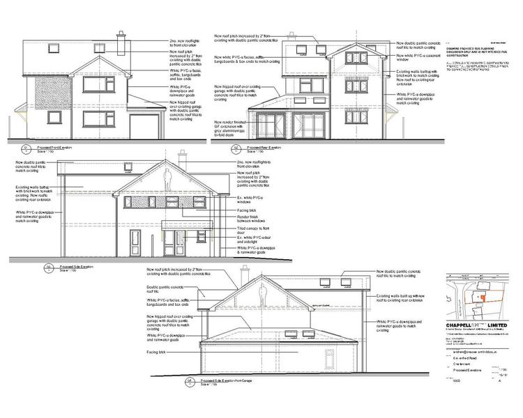
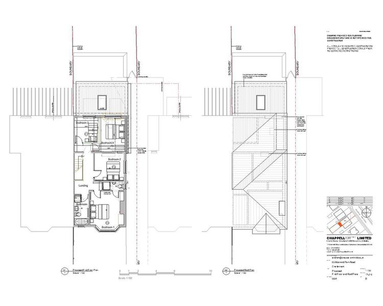
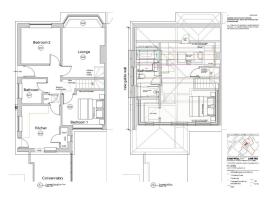
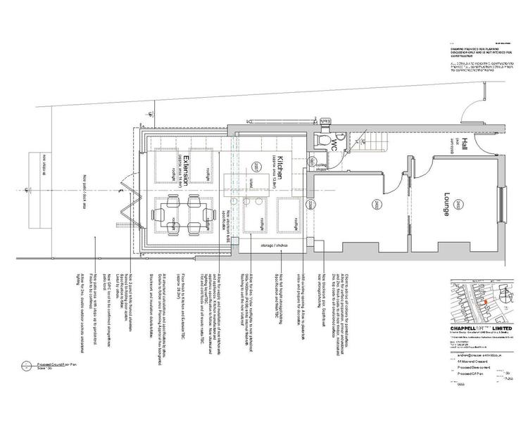
Full planning permission drawings and Permitted Development drawings to include: floor plans, elevations, sections, roof plans, perspective views, OS Map, site plans together with full support for any application including Design and Access Statements and Application Form filling.

 

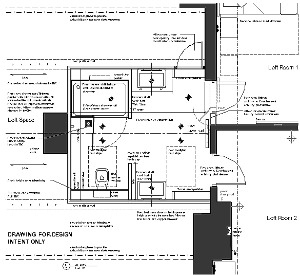
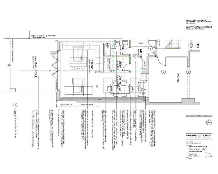
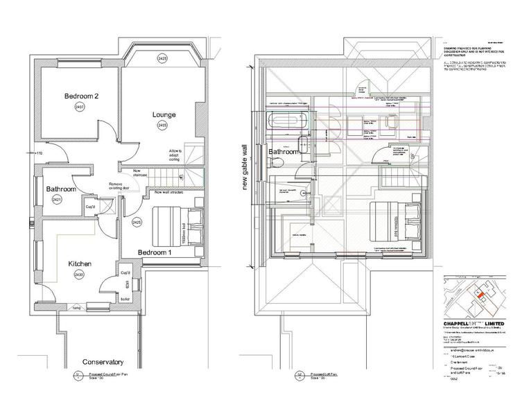
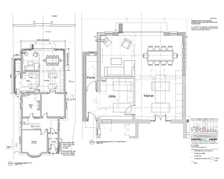
Working and Detail Drawings

Construction & working drawings for Building Regulations submissions, furniture design, kitchen design and commercial fit outs

 

Other Services

  • Measured building surveys
  • Concept design
  • 3D modelling
  • Interior design and scheme consulting
  • CAD conversion

Areas of Work

  • Home extensions
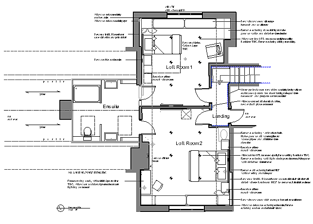
  • Loft conversions
  • Restaurants, bars, hotels
  • Retail
  • Office space planning
  • Product procurement
  • FF&E scheduling

 

 

 

Print | Sitemap
© ChappellSmith Limited

Call

E-mail